Этап #1 Постановка задачи
В кино, чтобы обмануть сканер радужки глаза, шпион надевает специальную линзу, а то и делает что похуже. Но с таким сканером, с которым работал Формлаб, секретный агент мог бы и провалиться.
Во-первых, он не сообразил бы, что это сканер, потому что аппарат больше похож на рамку металлоискателя. Во-вторых, сканер CYCLOP распознаёт человека по радужке даже не вплотную, а уже на дистанции около полутора метров — причём походя, между делом.
Именно для такого сканера Формлаб разрабатывал конструкцию и полный пакет конструкторской документации.
Сам корпус несложный — это опорная рамка на каркасе из металлических труб, обшитая стальным листом, монитор и съёмный модуль электроники из нескольких блоков наверху. Класс защиты — IP21.
Условия задания поставлены так, что внешний вид не стоит в приоритете. Конечный потребитель (госструктуры) любит сугубо утилитарные изделия, поэтому надо сразу приступать к конструированию.
Этап #2 CAD-моделирование
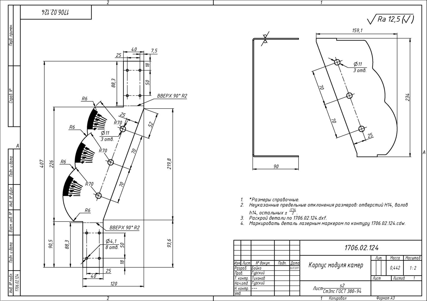
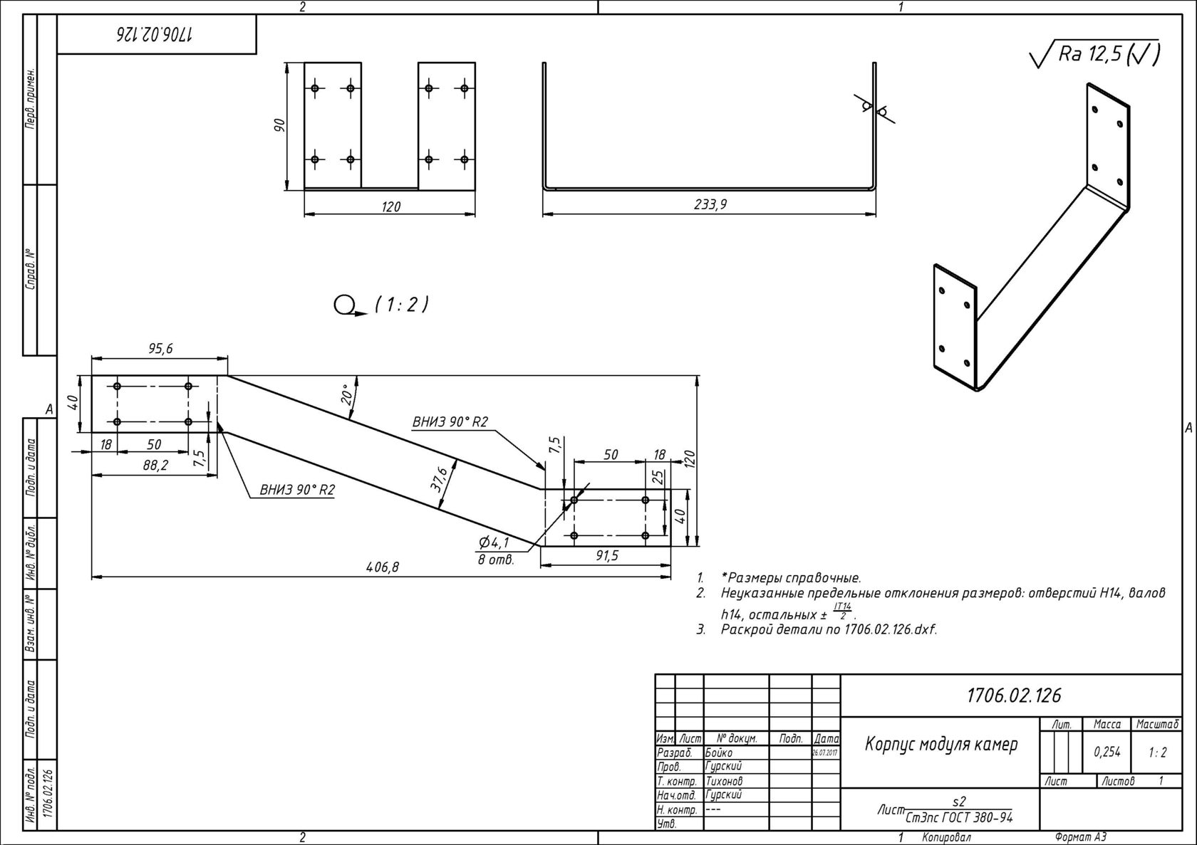
Самое главное — электроника. В верхнем модуле размещаются камеры, блоки вычислителей, управления и передачи данных, инфракрасной подсветки и питания.
Требование заказчика: минимально возможная ширина рамки (с учётом необходимого расстояния между блоками инфракрасной подсветки). Монитор ставится на кронштейн, и в дальнейшем его наклон можно регулировать.
Этап #3 Конструкторская документация
Этап #4 Производство
Заказчик решил сделать мини-серию сканеров — несколько штук, а Формлаб предложил своего подрядчика для этого. Процесс сборки одного из первых серийных экземпляров — на фото ниже.
В дополнение ко всему сделанному мы провели для заказчика оценку производства сканера.

— Подобные проекты можно назвать образцовыми. Но не только потому, что Формлаб всё правильно сделал. Речь идёт о том, что в команде заказчика нет лишних людей. Здесь специализируются на разработке систем биометрической идентификации, а остальное с чистой совестью отдают на аутсорс, — в любом бизнесе так и должно быть. Конечно, можно взять в штат конструктора или даже дизайнера, но в этом случае такое как минимум нерационально.
Андрей Востриков,
руководитель.
ФОРМЛАБ, специалисты по корпусам
Подобные проекты можно назвать образцовыми. Но не только потому, что Формлаб всё правильно сделал: в команде заказчика нет лишних людей.












