Этап #1 Постановка задачи
Рециркулятор — это, как все уже знают, очиститель воздуха от вирусов и бактерий. Из-за пандемии рециркуляторы в тренде, но внешний вид большей части из них расстраивает: ящики и ящики. Делаем «хороший» дизайн, разрабатываем КД.
Устроен прибор несложно: в составе конструкции — закрытый корпус с фильтром, через который с помощью вентиляторов прокачивается воздух. Бактериальная очистка прокачиваемого воздуха осуществляется УФ-лампой, которая находится внутри корпуса.
У корпуса должны быть съёмные решётки с двух сторон (для того, чтобы снимать и чистить фильтр), панель управления, кнопка включения в сеть и несколько индикаторов — наработки времени для лампы, световые индикаторы работы вентилятора и лампы.
Мы должны разработать:
- корпус со внутренними перегородками;
- дизайн панели управления;
- прижимные планки для крепления внутреннего наполнения;
- крепёж.
Особое пожелание: при проектировании конструкции корпуса необходимо максимально уйти от изготовления форм для пластиковых запчастей. Так производство будет дешевле.
За внутренние компоненты и подбор комплектующих отвечает заказчик.
Ограничения для нас: индикатор наработки лампы должен оставаться на том же месте относительно платы, а контрольные светодиоды и кнопку «Старт» можно располагать на наше усмотрение. Габариты камеры сгорания внутри рециркулятора регламентированы, от них уходить нельзя. Нужно обеспечить замену пылезащитного фильтра без разборки корпуса (с крышкой на защёлках). Корпус будут периодически разбирать — например, для замены ламп, с нас — удобство разборки.
И последнее: рециркулятор должен соответствовать требованиям к медицинским электрическим изделиям по электромагнитной совместимости (ГОСТ Р МЭК 60601-1-2-2014, ГОСТ CISPR 15-2014) и электробезопасности (ГОСТ Р50267.0 класс I тип BF).
Рециркуляторы других производителей выглядят так:
Именно этот рециркулятор будет способен «прокачивать» через себя 77 кубометров воздуха в час и очищать его от бактерий и вирусов. Устройство можно ставить на пол или на любую горизонтальной поверхности или закреплять на стене.
Этап #2 Эскизирование
Дизайн должен быть выполнен в светлых тонах и не выглядеть инородно в любом интерьере, ведь его будут использовать и дома, и в офисе.
Первые эскизы:
В дальнейшем работаем над этой версией:
Развиваем три варианта: экспериментируем с решетками; меняем геометрию (делаем корпус, более вытянутый в высоту). С такой формой рециркулятор можно реализовать и двухслойный: внешний слой полностью из перфорированного листа, а внутри будет ещё один лист металла. Так вентиляция останется только там, где необходимо.
Также дизайнер предложил и свой вариант — со съёмной передней панелью.
Заказчику нравится вариант с круглой перфорацией. Но есть и вопросы — во-первых, непонятно, как будет осуществляться протяжка воздуха? Во-вторых, что это за окошко в верхней части корпуса? Похоже на ЖК-дисплей. Если так, никто не против дисплея
Все уточнять будем на этапе моделирования.
Этап #3 3D-моделирование
Направлять воздух, скорее всего, нужно будет дополнительными внутренними листами. Что касается дисплеев, то здесь есть три варианта.

LCD-дисплей. Такой использует один из конкурентов. В жизни смотрится как дисплей калькулятора (только с заливкой синего цвета плюс есть подсветка). Минус таких дисплеев — большой процент брака; плюсы — много замен pin-to-pin от разных производителей (так что можно рассматривать аналоги) и относительно низкая цена.

OLED-дисплей. Плюсы: смотреться будет интереснее — чёрный фон, контрастные символы (можно выбрать цвета); процент брака у таких дисплеев меньше, чем у LCD; есть даже дисплеи круглой формы. И даже можно на такой дисплей добавить мини-сенсорную панель. Минус один, но существенный: дорого.

Обычные символьные индикаторы. Плюсы — доступность, низкая цена. Минус — может «не зайти» внешний вид. Хотя... смотря как сделать.
Дизайн-модель для окончательного утверждения:
Дизайн согласован, но с дисплеем всё равно определимся позже.
Этап #4 CAD-моделирование
Делаем предварительную оценку производства основной детали из металла по двум технологиям: экструзия алюминия и гибка.
Выясняем, что стоимость изготовления инструмента для экструзии (матричного комплекта и спецболстера) в 10 раз выше стоимости оснастки (матрицы) для гибки. Выбор вроде очевиден.
И... в итоге решаем, что будем проектировать корпус рециркулятора под пластмассу — вместо металла.
Ок, делаем наброски корпуса для оценки его технологичности. Конструктор общается с производством и всё скрупулезно выясняет.
Прорабатываем конструкцию, учитывая замечания производства (параллельно отправляем файлы с КД будущему изготовителю для оценки «серии»).
Тем временем клиент делает макет, вносим правки.
Дорабатываем, добавляем опору, правим её (заказчику больше нравится вариант со сплошным отверстием по центру).
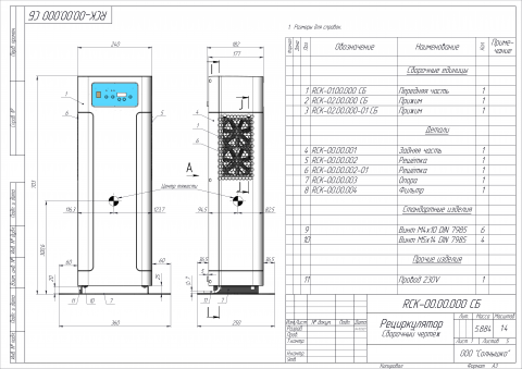
Этап #5 Конструкторская документация
Сдаём комплект КД, оцениваем производство.
Но это ещё не всё: рециркулятору нужно пройти медицинскую регистрацию (для этого клиент отправляет регистраторам прототипы), поэтому изготовление матриц и запуск в серию пока откладываются. Ждём.




































