Этап #1 Постановка задачи
Системе автоматизации парковки VECTOR_AP нужен новый дизайн. Конструкцию заказчик будет разрабатывать самостоятельно, а всё, что касается внешнего вида — наша забота.
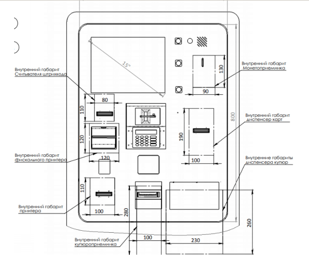
В составе терминала — въездная и выездная стойки и автоматическая касса — терминал оплаты. Однако у каждого из этих элементов есть несколько модификаций, которые отличаются друг от друга составом органов управления и индикацией. Например, есть «обычная» касса, а есть специальная для инвалидов — с низким цоколем.
В конструкции въездной стойки есть принтер билетов, выездной — слот для предъявления билета. Имеются микрофон и динамик для связи с оператором, TFT-дисплей, считыватель бесконтактных карт, светодиодный светофор на боковой стенке. Также в составе стойки могут быть считыватель QR-кода, принтер чеков и т.д.
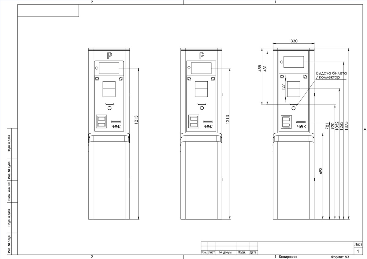
Стойка состоит из основания и передней панели. Её габариты определены чётко: ширина корпуса — 330 мм; глубина — 330-430 мм; низ передней панели должен находиться на высоте 700-750 мм от земли. Верх передней панели — 1250 мм.
Один из ключевых элементов в составе терминала — касса с купюроприёмником, сенсорным дисплеем, диспенсером купюр и фискальным регистратором с принтером чеков. Передняя панель терминала оснащена кнопками управления и связи, слотом для выдачи билетов, подсветкой; опционально — камерой обзора водителя, монетоприёмником, карт-ридером и пр. Именно с помощью панели обеспечивается доступ ко внутреннему оборудованию; она может быть как выдвижной, так и открывающейся.
Особые требования: сборка — только на винтах и заклепках плюс нам необходимо минимизировать стоимость производства корпусов.
Кроме того, в составе терминалов могут со временем появиться дополнительные элементы — для их установки нужно предусмотреть заглушки, сделав их элементами дизайна.
Кстати, в дизайне возможна рамка передней панели с заполнением пластиком / пластиком со стеклом или крашеным металлом.
А вот конкуренты. Наша задача — не походить на них:
Этап #2 Эскизирование
Про цветам устройств предпочтений нет, главное — чтобы линейку терминалов сразу отличали от терминалов других производителей.
Черновики:
Чистовые эскизы уже не такие схематичные:
Однако фантазии ограничиваются допустимыми технологиями производства, где на первом месте — гибка металла. «Космос» тут не пройдёт.
Эскизы клиент получил, просмотрел и… решил сменить дизайнера.
…и всё равно выбрали один из первых продемонстрированных вариантов. Вот:
Этап #3 3D-моделирование
Моделируем стойку, кассу и другие компоненты:
Варианты компоновки:
Рендеры. Конструкцией заказчик, как уже говорили, займётся сам:
Реальные терминалы в Казахстане:























































































