Этап #1 Задача
Сегодня у нас в работе большой корпус — напольный. Это измерительный терминал автоматизированной системы предсменных медицинских осмотров. Такие работают на пунктах медосмотров водителей и других работников, которые управляют сложными механизмами. Наша задача – разработать не только дизайн и эргономику (чтобы люди любой комплекции чувствовали себя комфортно при измерениях), но также конструкцию и пакет КД – чтобы все полностью было готово для промышленного прозводства.
Терминал может идентифицировать работника, измерить ему пульс и давление, одновременно определить температуру и даже улавливать пары этанола. Также в составе терминала есть пульсоксиметр.
В конце осмотра устройство сфотографирует водителя или запишет видео, зарегистрирует обследуемого с помощью простой электронной подписи и — опционально — распечатает талон о прохождении медосмотра.
Управляется терминал через сенсорный дисплей.
Требования заказчика: не следовать за конкурентами, чьи терминалы делаются по принципу «круговой» компоновки, а экран при этом находится перед обследуемым или правее него; сохранить компактные размеры корпуса: площадь платформы — не более 1 кв.м. без учета кресла. Разбираться/собираться корпус должен легко и просто, без специнструментов. Некоторые элементы требуют регулярной поверки, а медработники в своей массе — женщины. Далее: минимальный вес, удобно расположенный как для обследуемого, так и для обслуживающего персонала датчик пульса (лучше встроить его в правый подлокотник стула и при этом одновременно измерять давление с левой руки).
Вообще, устройство очень сложное в плане эргономики. Например, кресло — это часть терминала. Оно должно быть компактным, устойчивым, удобным, а его поверхность — легкомоющейся и устойчивой к воздействию дезинфицирующих средств — по САНПИНу. К эргономике особые требования: севший в кресло человек должен автоматически принять правильное положение для измерения давления, а потом без лишних движений перейти к измерению температуры и проверке на алкоголь.
В конструкции необходимо предусмотреть транспортировочные колеса со стопорами, а также ножки или подставки для стационарного размещения. Нужно минимизировать видимый снаружи крепеж, вывести на корпус (и сразу обезопасить от возможных повреждений) разъем для подключения к электросети. Справа сделать «кармашек», в который можно будет положить на время осмотра путевой лист, карточку медосмотров и другие документы.
Корпус должен быть устойчивым даже на неровной поверхности, ударопрочным, выдерживать падения на бок, удары ногами, руками и чем придется. Производитель настоятельно рекомендует сделать защиту от опрокидывания.
При всем этом этом себестоимость корпуса ограничена.
Тут остаётся только подумать что-то наподобие: «Ничего себе», — и… садиться за эскизы.
Но сначала — изучить терминалы конкурентов. И для того, чтобы посмотреть тенденции дизайна, и для того, чтобы ненароком что-то не скопировать. Повторять чьи-то идеи категорически запрещено.
Корпус будет из металла. Допустимо использование пластиковых элементов.
Этап #2 Эскизирование
Цвета определены заранее — корпоративные. По палитре RAL это 9010 и 5003. Другим оттенкам — категорическое «нет». Все надписи (подписи к элементам управления, название компании и т.д.) будут наноситься шелкографией.
Черновые эскизы:
Первый отбор:
Заказчик определился с основанием — вариант «Г». Монитор располагаем горизонтально, с возможностью регулировки вверх-вниз.
Корпус тоже берем из варианта «Г», но делаем утопленную переднюю панель для прохода кресла. Думаем про расположение датчика пульса. Кожух и штангу монитора берем из варианта «Д», что-то утаскиваем из концепта «Б» — собираем конструктор, допиливаем.
После многочисленных доработок чистовики готовы:
Этап #3 3D-моделирование
Этап #4 CAD-моделирование
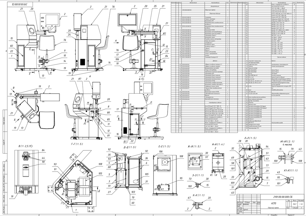
Этап #5 Конструкторская документация
Параллельно занимаемся графикой — рисунками и надписями на корпусе.
Иконки — исходник:
Что получилось:
Рендеры:
Мы свою часть работ на этом этапе закончили. Клиент делает опытный образец.


















































































